Description

Situated on US-441/US-27 with a high average traffic count of 30,000 vehicles per day. Across from the new 7-Eleven (now open) and the future Enclave at Lake Geneva residential development, which will feature over 420 dwelling units. Less than a 15-minute drive from The Villages, recognized as America’s top master-planned community for retirees. Surrounded by a variety of professional services and single-family residential homes, with the Fruitland Park City Hall and Recreation/Community Center in close proximity.

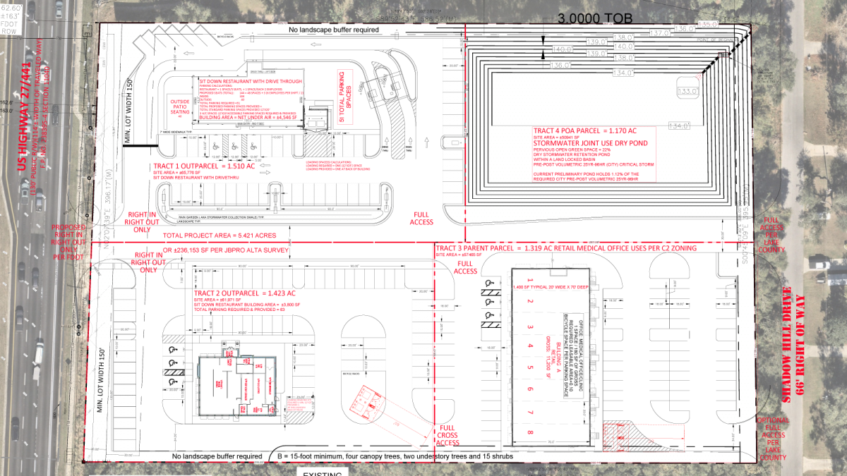
  • Available for Ground Lease
  • Parcel A – ±1.510 Acres – Ground Lease
    • 4,546± SF Restaurant with drive-thru and outdoor patio
    • 51 parking spaces
  • Parcel B – ±1.423 Acres – Ground Lease
    • 3,800± SF Restaurant
    • 63 parking spaces
  • Parcel C – ±1.319 Acres – Spaces available (contact for more info)
    • 11,200± SF Retail and Medical Office
    • 1,400± SF spaces (20’ wide x 70’ deep)
    • 74 parking spaces
Site Plans
Floor Plans
Property Location

Property Details

Property Type: Retail
Lease Sizes: 1,400 SF to 11,200 SF
Frontage: 396'
Zoning:C-2
Future Land Use: Commercial
Ideal For: Retail/Office

Location

Traffic Counts: +30,000 CPD
Nearby: The Villages; Enclave at Lake Geneva
All information presented on this site regarding real property, for sale, rental and/or financing is from sources deemed reliable. No warranty or representation is made as to the accuracy thereof and same is submitted subject to errors, omissions, change of price, rentals or other conditions, prior sale, lease or financing or withdrawal without notice.