Description

Prime location with direct frontage on Narcoossee Road (58,500 AADT), across from Lake Nona High School and adjacent to Dwell Luxury Apartments at Nona Place. The property is situated in a fast-growing area within three miles of the Eagle Creek, Laureate Park, and VillageWalk communities, and just minutes from Lake Nona Town Center, Medical City, and the UCF College of Medicine.

Within walking distance of popular retailers and restaurants including ALDI, Chick-fil-A, Bolay, and Marco’s Pizza, with additional nearby options such as Chipotle, Starbucks, BurgerFi, and First Watch. Convenient access is provided by proximity to SR 417, just five minutes away.

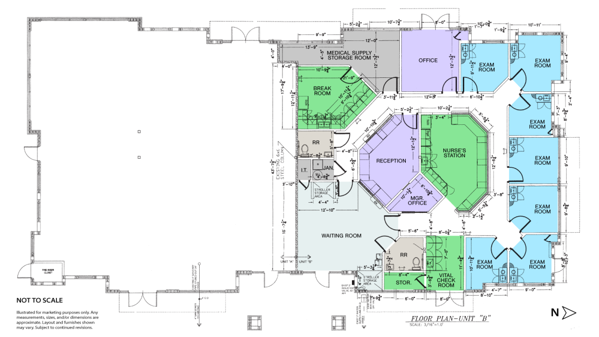
  • ±3,000 SF Medical office with full build-out is available
  • Next door to SimonMed Imaging
  • Build-out includes:
    • Waiting room, reception area, nurse's station, breakroom with kitchen, and a medical storage supply room
    • 7 exam rooms and 1 private office
    • 2 ADA restrooms, including one with a specimen pass-thru to the vitals check room/lab

Please do not disturb tenant

Site Plans
Floor Plans
Property Location

Property Details

Property Type: Medical
Lease Sizes: 3,000 SF
Parking: 40 Parking Spaces
Signage: Monument and Storefront
Year Built: 2020
Ideal For: Medical Practice

Location

Traffic Counts: +58,500 CPD
Tenants Include: SimonMed Imaging
Surrounded By: New Commercial, Luxury Apartments, Medical
All information presented on this site regarding real property, for sale, rental and/or financing is from sources deemed reliable. No warranty or representation is made as to the accuracy thereof and same is submitted subject to errors, omissions, change of price, rentals or other conditions, prior sale, lease or financing or withdrawal without notice.